Reckert60

GmbH&Co.KG

Innenausbau, Objekt- und Möbeltischlerei

Tischleraufrecht
Facebook Logo

  updated.....................................15.09.2012

 Home
 Deutsch
 english
 Home

copyright reckert GmbH&Co.KG  2012

info@tischlerei-reckert.de

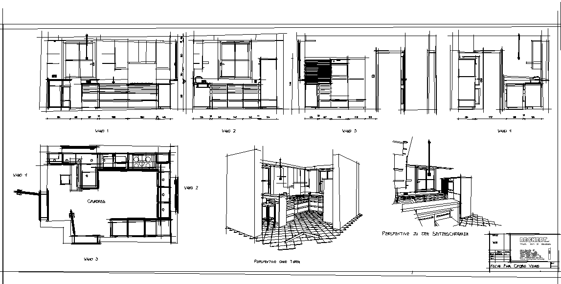
........ erstklassige Planung mittels 3D Modellen im Maßstab 1:1

Empfang 3 D Modell

........ aus den Modellen generieren wir Isometrien, Perspektiven und Ansichten

Empfang Zahnarzt Umbau gesamt

........ aus den Perpektiven erstellen wir Präsentationszeichnungen

Empfang Terapiezentrum

........ hier das Planungsbeispiel für eine moderne Küche

Kueche Gesamt

........ hier eine Küche mit Rahmenfront und Pilastern

Kueche mit Pilastern und Rahmenfront

zurück zur Übersicht